
Bourgade Catholic High School was founded back in 1962 by Bishop Green to serve Catholic students on Phoenix’s west side and is named after Archbishop Peter Bourgade, a French missionary priest. Boasting a 27-acre campus that offers a college-preparatory curriculum with a strong emphasis on Catholic formation, the school enrolls around 350-400 students in grades 9-12.
In addition to its academics, Bourgade ranks in the top 20% of Arizona private schools for sports and extracurriculars, offering 12 interscholastic sports including football, basketball, volleyball, soccer, baseball, softball along with clubs like Student Council, which earned National Gold Council Excellence Awards from 2013-2016. Serving as home to the Golden Eagles, the school unfortunately had two of their outdoor bleachers recently handed failing grades after being inspected.
As with many of these types of inspections, they were soon condemned, leaving school officials scrambling to find replacements ahead of their busy athletic season. As part of their search for a solution, they reached out to our partners at Arizona Sports Installation asking them to come by the school to take some detailed measurements and provide some possible options for some new grandstand bleachers.

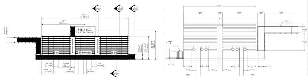
There they learned that the school was not only looking for two new seating structures, but they wanted to ensure that they were also completely barrier-free in design. Looking to have ramps, stairs and wheelchair accessible seating, they ended up expressing a lot of interest in a pair of code-compliant elevated grandstands for the site.
From there, we worked closely with our friends at Arizona Sports Installation, using the measurements to design two completely customized 10-row elevated bleachers for their sidelines.
The first grandstand was a beautifully-sized seating structure. Measuring at 90 feet in length, it would include seating for 514 spectators plus an additional 8 ADA-accessible spaces, along with a press box. The second structure was slightly smaller in size measuring 52 feet long and featuring seating for nearly 300 spectators and 6 ADA-accessible seating spaces.

Following the planning and manufacturing of these massive structures, our team had them shipped directly to the school in Phoenix. There they were met by the team at Arizona Sports Installers and were installed on-time and on-budget.
Both of these bleachers turned out beautifully and our dealer in Arizona did a masterful job installing our bleachers and ramps, all while sourcing and installing their own press box locally.
Go Eagles!
.png)
